Promueve Varedo Astoria S.L.

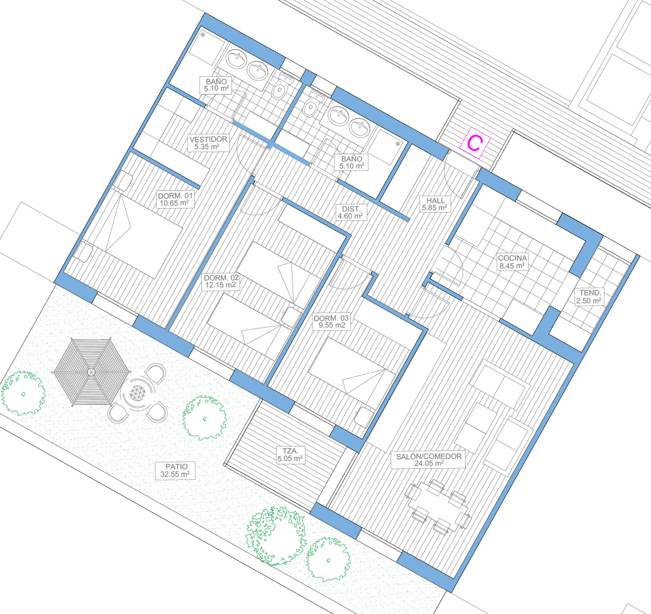
Vivienda Tipo C

C

Modernidad, Calidad y Confort

Cada vivienda que compone la promoción, se ha proyectado pensando en ti.

Combinando la elegancia de una arquitectura de formas clásicas con las últimas vanguardias en diseño, la armonía del proyecto se basa en la integración de sus fachadas en tonos claros con zonas naturales privadas.

Datos técnicos

  • Superficie Construida C.P.P.E.C. 123,64 m²
  • Superficie Útil 93,35 m²
  • Superficie Terraza (100%) 5,05 m²
  • Superficie Patio 32,55 m²

Garaje

Pisicna

Gimnasio

Reuniones

Zona Ajardinada

Parking Bici